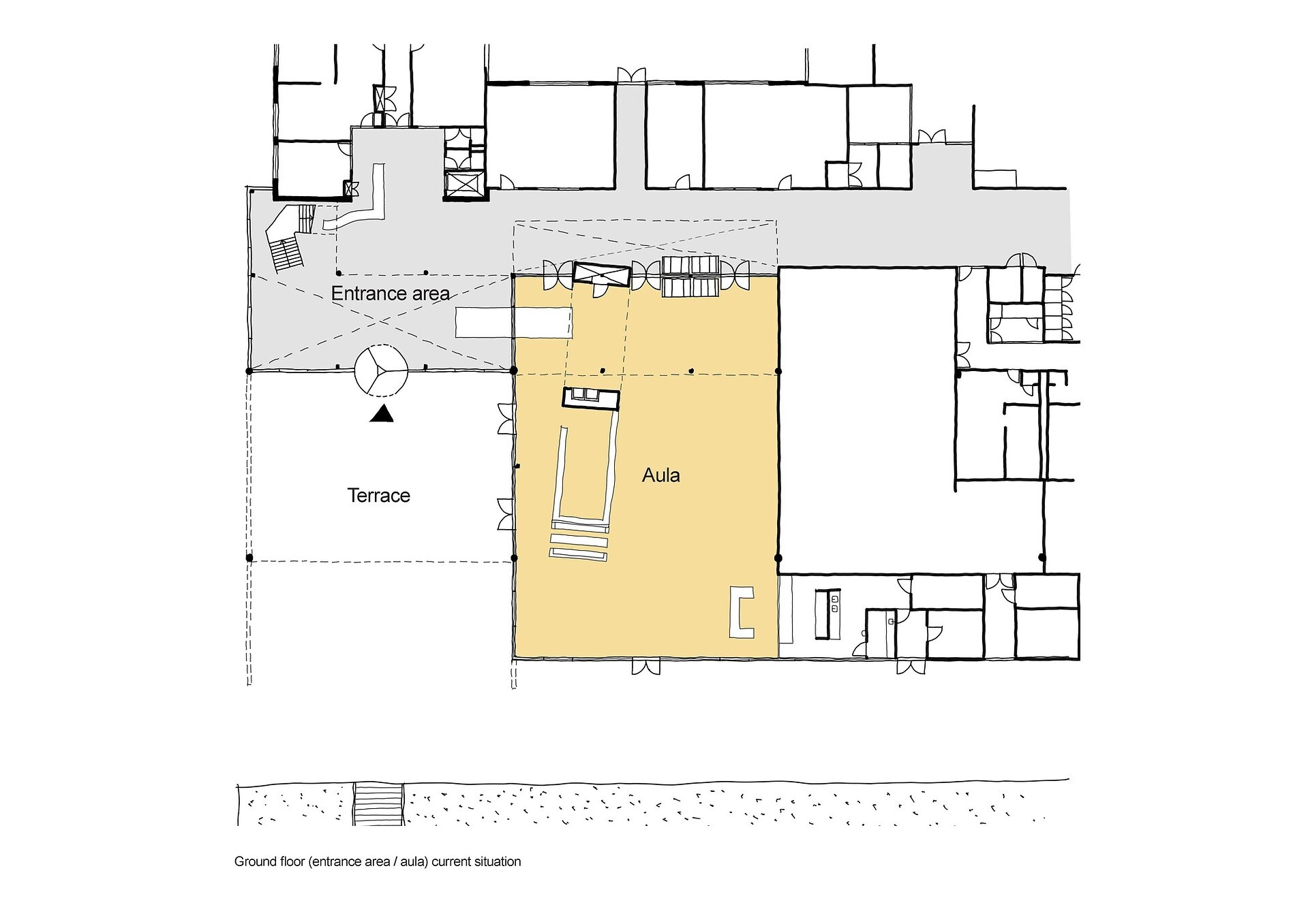
Fondere Architects was commissioned by the Da Vinci College in Gorinchem (ROC) to explore ways to improve the entrance area of an ROC school while integrating a teaching kitchen/bakery into the existing cafeteria. The goal was to transform the kitchen and adjacent space into a city restaurant in the evenings and on weekends, where students could put into practice what they had learned during lessons.
Fondere explored various possibilities, from which two preferred scenarios emerged:
- Scenario 1: addition of the kitchen/bakery and a new table layout within the existing structure with minimal interventions.
- Scenario 2: a larger intervention with the kitchen/bakery, a new table layout, and a tiered seating area for flexible use by both students and the public.
Smart transformations like these make buildings more versatile, maximize the use of existing infrastructure, and give the building an active role in the community. Such interventions enhance the character and atmosphere of the street, enrich social life, and improve the amenities of the neighborhood and city.






