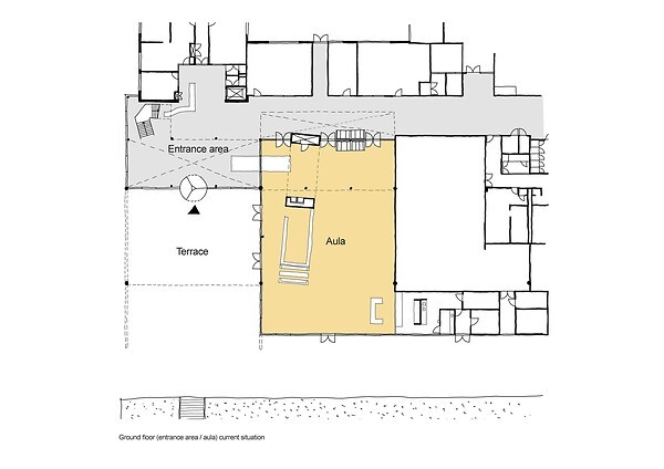
Fondere Architecten kreeg van het Da Vinci College in Gorinchem (ROC) de opdracht om mogelijkheden te onderzoeken om de entreezone van een ROC-school te verbeteren en tegelijkertijd een leerkeuken/bakkerij te integreren in de bestaande aula. Het doel was om de keuken en de aangrenzende ruimte in de avond en het weekend te transformeren tot een stadsrestaurant, waar leerlingen in de praktijk konden brengen wat ze tijdens de lessen hadden geleerd.
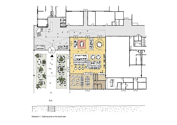
Fondere onderzocht verschillende mogelijkheden, waaruit twee voorkeursscenario’s voortkwamen:
- Scenario 1: toevoeging van de keuken/bakkerij en een nieuwe tafellay-out binnen de bestaande structuur met minimale ingrepen.
- Scenario 2: een grotere ingreep met toevoeging van de keuken/bakkerij, een nieuwe tafellay-out en een tribune voor flexibel gebruik door zowel leerlingen als publiek.
Slimme transformaties zoals deze maken gebouwen veelzijdiger, benutten de bestaande infrastructuur optimaal en geven het gebouw een actieve rol in de gemeenschap. Dergelijke ingrepen versterken het profiel en de sfeer van de straat, verrijken het sociale leven en verbeteren de voorzieningen in de buurt en stad.






